Обяви За нас Контакти
Продава 3-СТАЕН
град София, Бояна
311 080 €
608 419.60 лв.

(2 753 €, 5 384.40 лв./m2)
Не се начислява ДДС
История на цената
Коригирана в 8:48 на 20 януари, 2026 год.
Обявата е посетена 387 пъти.
Площ:
113 m2
Етаж:
3-ти от 5
Газ:
ДА
Строителство:
Тухла, Ще бъде въведен в експлоатация 2026 г.

Описание на имота:


Реф. 012704

Агенция за недвижими имоти BAS Properties предлага за продажба тристаен апартамент в новострояща се жилищна сграда, разположена в кв. Бояна м. Гърдова глава. Имотът е изцяло с южно изложение, с просторни помещения и функционално разпределение, подходящ както за семейно жилище, така и за дългосрочна инвестиция.

Основни параметри:
- Тип имот: Тристаен апартамент
- Локация: кв. Бояна (м. Гърдова глава), гр. София
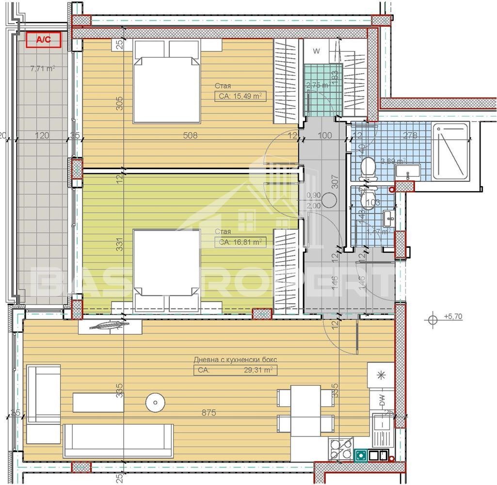
- Площ: 113.28 кв.м.
- Строителство: Тухла, 2026 г.
- Етап: След АКТ 14
- Етаж: 3 от 5
- Отопление: Газ и електричество
- Изложение: Юг
- Асансьор: Да

Разпределение:
- Входно антре
- Просторна дневна с кухненски бокс и трапезария
- Две спални
- Баня с тоалетна
- Отделна тоалетна
- Склад
- Тераса

Състояние:
Апартаментът се издава по БДС. Просторните стаи, правилните форми и южното изложение осигуряват светлина, комфорт и отлична функционалност.

Сграда и локация:
Имотът е част от модерен комплекс, проектиран с фокус върху качеството на живот, сигурността и уюта. Сградата е с луксозна визия, окачена фасада, машинна мазилка и газификация. Предвидени са луксозни общи части, метална поръчкова входна врата и висок клас дограма REHAU GENEO 86 мм с троен стъклопакет в цвят антрацит.

Локацията предлага чист въздух, зелена среда и същевременно бърз достъп до бул. България, Южната дъга и центъра на София, както и удобен градски транспорт.

За повече информация и организиране на оглед, свържете се с нас.

Осигуряваме безплатно съдействие при банково кредитиране.
Особености
Тухла
Асансьор
Контрол на достъпа
Саниран
За контакт:
0899 818 212
Агенция:
БАС ПРОПЪРТИС
0899818212
БАС ПРОПЪРТИС logo
Медал за прослужено време
В imot.bg от 2022 г.
basproperties22.imot.bg
Адрес:
област София, гр. София, гр.София бул.Европа 31 офис 2
http://basproperties.bg
ИЗПРАТИ ЗАПИТВАНЕ
ИЗПРАТИ ЗАПИТВАНЕТО

Продава 3-СТАЕН
град София, Бояна
Обява: 1c176640211625004

311 080 €
608 419.60 лв.
История на цената
(2 753 €, 5 384.40 лв./m2)

Не се начислява ДДС
ЗАПАЗИ ОБЯВАТА

Местоположение: град София, Бояна

Допълнителни данни за имотите в района и сравнение с други райони

Покажи

Период

и 2 месеца

* Средните цени са определени чрез медианна стойност