Обяви За нас Контакти
Продава 2-СТАЕН
град София, Люлин 5
109 900 €
214 945.72 лв.

(1 446 €, 2 828.13 лв./m2)
Цената е с включено ДДС
История на цената
Публикувана в 15:27 на 27 март, 2026 год.
Обявата е посетена 120 пъти.
Площ:
76 m2
Етаж:
9-ти от 9
ТEЦ:
ДА
Строителство:
Тухла, Ще бъде въведен в експлоатация 2026 г.

Описание на имота:


Реф. 011300

Пред АКТ 16!

Агенция за недвижими имоти BAS Properties предлага за продажба двустаен апартамент в новострояща се жилищна сграда в жк. Люлин 5. Сградата ще бъде завършена през 2026 година и се намира на перфектна локация с бърз достъп до основните булеварди Царица Йоанна , Д-р Петър Дертлиев , Околовръстен път и бъдещата метростанция Добринова скала .

Основни характеристики:
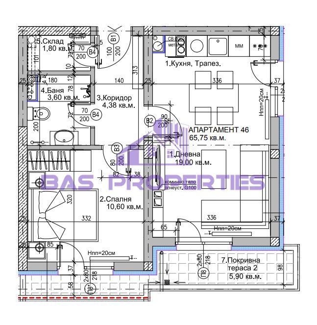
- Площ: 75,59 кв.м.
- Строителство: Тухла, 2026 г.
- Етаж: 9 от 9
- Отопление: ТЕЦ
- Изложение: Юг/Изток

Разпределение на апартамента:
- Входно антре
- Просторна дневна с кухненски бокс
- Спалня
- Баня с тоалетна
- Склад
- Покривна тераса

Информация за сградата:
Локация: Апартаментът се намира в район с перфектна инфраструктура, осигуряваща бърз достъп до главни пътни артерии. Наблизо има големи супермаркети, магазини, детски градини, училища и фитнес зали.
Качество на строителството: Шесткамерна PVC дограма с отлична топло- и звукоизолация, входна блиндирана врата, фина гипсова мазилка на Knauf , тухлени блокове с висока звуко- и топлоизолация, фасадна минерална мазилка, луксозно изпълнени общи части.
Удобства: Асансьор, домофонна инсталация, интернет окабеляване.
Гледка: Прекрасни гледки към Стара планина, Витоша и Люлин планина.

Завършен по БДС:
- Шпакловани стени и подове със замазка
- Монтирани ключове, контакти и фасунги
- ВИК инсталации до тапа, шумоизолирани, затворени с влагоустойчив гипсокартон
- Топлоизолация по проект

Сградата се строи от доказан инвеститор с осем сгради в София. Строителните дейности ще бъдат завършени по високи стандарти, осигуряващи комфорт и лукс на бъдещите собственици.

Този апартамент е идеален за тези, които търсят удобен и модерен дом в сърцето на София с лесен достъп до всички необходими удобства и транспортни връзки.

За повече информация и организиране на огледи, моля свържете се с нас.

Агенцията предлага безплатно съдействие при жилищно кредитиране.
Особености
Тухла
Асансьор
Контрол на достъпа
Саниран
За контакт:
0899 818 212
Агенция:
БАС ПРОПЪРТИС
0899818212
БАС ПРОПЪРТИС logo
Медал за прослужено време
В imot.bg от 2022 г.
basproperties22.imot.bg
Адрес:
област София, гр. София, гр.София бул.Европа 31 офис 2
http://basproperties.bg
ИЗПРАТИ ЗАПИТВАНЕ
ИЗПРАТИ ЗАПИТВАНЕТО

Продава 2-СТАЕН
град София, Люлин 5
Обява: 1b177461803956076

109 900 €
214 945.72 лв.
История на цената
(1 446 €, 2 828.13 лв./m2)

Цената е с включено ДДС
ЗАПАЗИ ОБЯВАТА

Местоположение: град София, Люлин 5

Допълнителни данни за имотите в района и сравнение с други райони

Покажи

Период

и 3 месеца

* Средните цени са определени чрез медианна стойност